Maison 5 pièces
110 M² / LE PUY-SAINTE-REPARADE / 13610
330,000 €
Quartier : centre ville
Référence : 2013587
330 000 (Honoraires charge vendeur)
DESCRIPTION DU BIEN
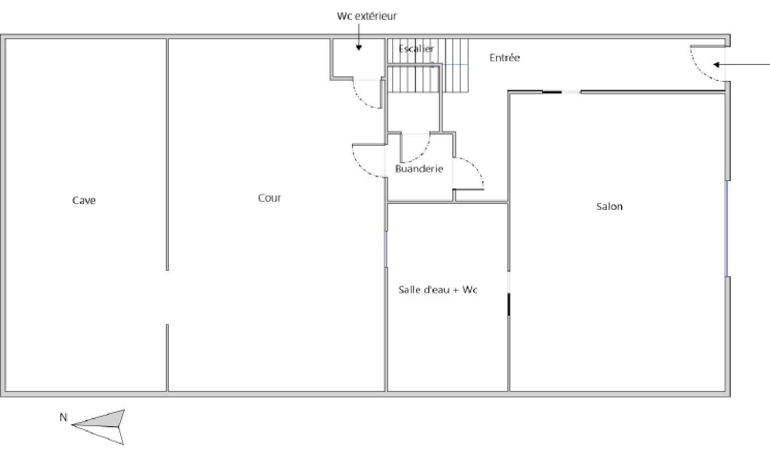
Coup de coeur assuré pour cette belle maison de village de 110 m² lumineuse, située plein centre du Puy Ste Réparade avec un bel extérieur et une grande cave.
Entièrement rénovée, elle allie charme de l'ancien, modernité et confort.
Par sa configuration spécifique permettant de préserver l'intimité de chacun (2 grandes suites parentales + 2 chambres avec 1 SDB et wc) comme d'apprécier les moments conviviaux (terrasse et véranda dînatoire), elle est parfaitement adaptée pour répondre aux besoins de tous!
Au RDC, une entrée dessert la 1ère suite parentale équipée d'une grande douche et d'un wc, une buanderie et un grand extérieur, très agréable, au calme et sans vis, pouvant être équipée en cuisine d'été, un autre wc et une grande annexe avec sa partie cave à vin.
A l'étage, une belle pièce de vie lumineuse avec plafond à la française, pierres apparentes et cheminée avec insert, une grande cuisine séparée et une véranda dînatoire avec une jolie vue verdoyante et dégagée, la 2ème suite parentale avec en plus une mezzanine, une salle de bain et un WC indépendant.
A l'étage suivant, se situent 2 autres chambres avec une salle d'eau et un wc.
A noter des fenêtres doubles vitrages de qualité et 2 climatisations réversibles récentes en plus des appareils performants de chauffage électrique et de la cheminée avec insert.
La suite parentale du RDC pourrait être totalement indépendante et louée en chambre d'hôte, studio ou pour une profession libérale.
Proche de toutes commodités, commerces, parking, bus, et écoles (crèche, maternelle, primaire et collège).
A 20 mn d'Aix en Provence, à 30 mn de la gare TGV et 17 mn de Cadarache.
Dossier complet sur demande.
PRIX 330000€
Contactez Carine Bourhy au o6 13 80 40 28
Les informations sur les risques auxquels ce bien est exposé sont disponibles sur le site Géorisques : www.georisques.gouv.fr.
Taxe foncière : environ 1005 .
Honoraires charge vendeur.
Contactez votre conseiller immobilier FIJ Mme Bourhy.
Tél : 06-13-80-40-28.
Mail : cbourhy@fij-immobilier.fr.
Agent commercial immatriculé au RSAC de AIx-en-Provence sous le numéro 893 032 003 .
Spécialiste sur le secteur de Le Puy-Sainte-Réparade et ses environs.
Consultez nos honoraires à l'adresse suivante : https://www.fij-immobilier.fr/public/resources/nos_honoraires.pdf
Informations supplémentaires
-
Surface habitable110 m²
-
Type de logementMaison
-
GarageNon
-
EtageNon
-
BalconNon
-
JardinNon
-
Année de constructionAVANT 1945
-
StatutLibre d'occupation
-
Bien soumis à la copropriétéNon
-
Taxe foncière1005
Bilan énergétique
(énergie primaire)
Minimum : 1590 € / an
Maximum : 2210 € / an


